Key Features
- 3 bedrooms
- 3 bathrooms
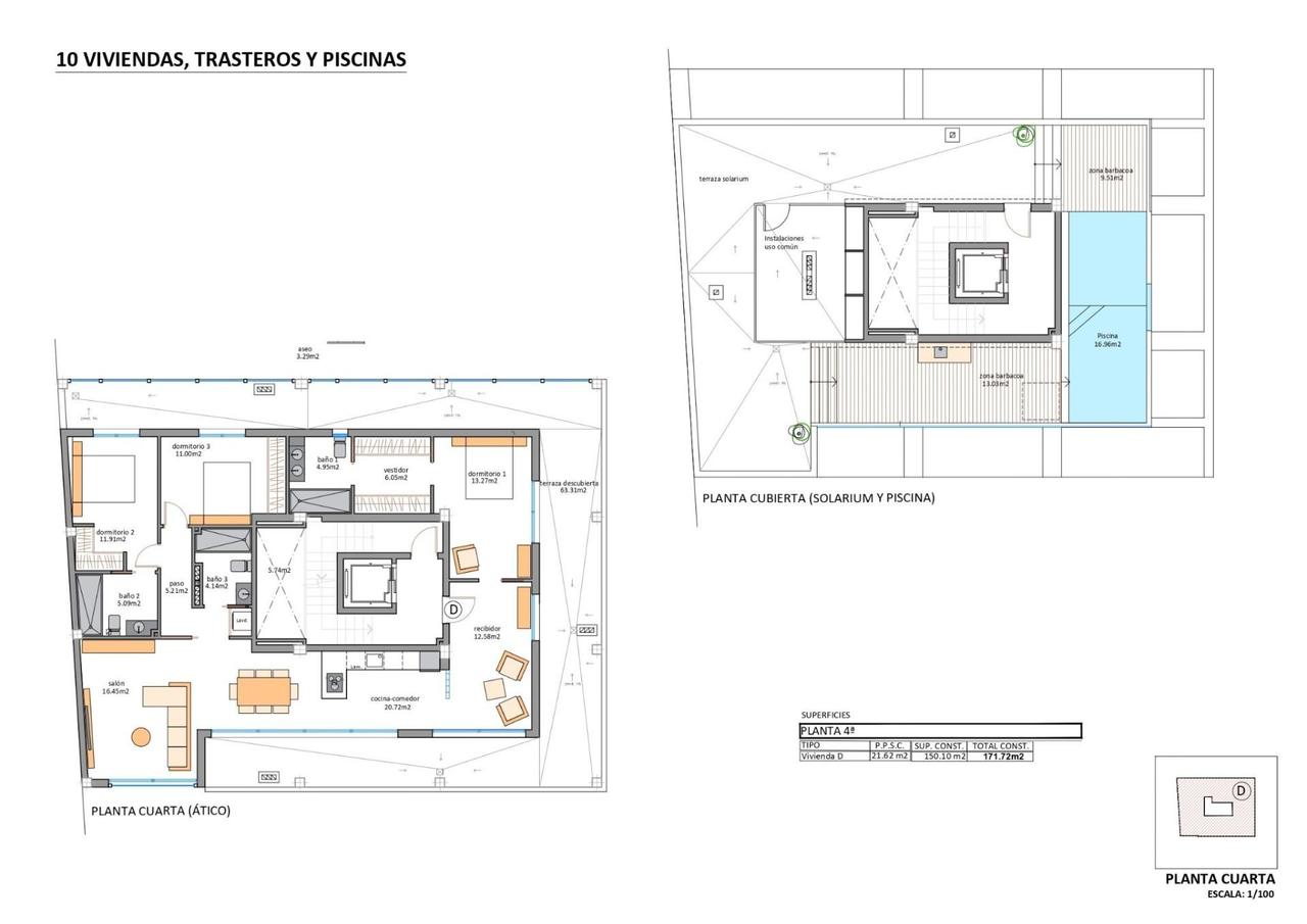
- 171 m2 build
- 0 m2 plot
- Swimming Pool: Yes
Property Description
New Build Apartments Just 100 m from the Beach in Lo Pagan, San Pedro del Pinatar
Exclusive Coastal Residential in a Prime Location
This new construction residential complex consists of only 10 modern apartments located in Lo Pagan San Pedro del Pinatar less than 100 meters from the beach. Set in one of the most attractive areas of the Mar Menor this development offers a perfect combination of seaside living comfort and excellent investment potential. Lo Pagan is well known for its relaxed atmosphere natural mud baths and proximity to both the Mar Menor and the Mediterranean Sea.
Modern Apartments and a Unique Penthouse Option
The project offers spacious two bedroom apartments with two bathrooms including a master bedroom with en suite bathroom. All homes feature open plan kitchens connected to bright living areas creating functional and welcoming spaces. The highlight of the development is an exclusive penthouse with three bedrooms and three bathrooms featuring a large terrace a private rooftop solarium and its own swimming pool offering an exceptional lifestyle with privacy and open views.
High Quality Finishes and Comfort Features
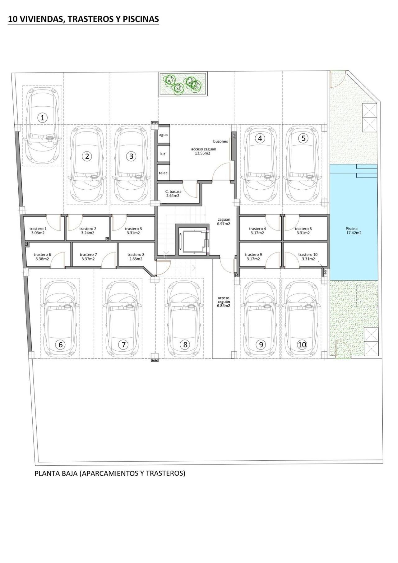
All homes are built to high standards and include bathrooms fitted with furniture, illuminated mirrors, electric towel rails and shower screens. Kitchens come fully equipped with appliances and modern cabinetry. Motorised blinds and a fully installed ducted air conditioning system ensure comfort throughout the year. Optional parking spaces and storage rooms are available at an additional cost providing extra convenience for residents.
Attractive Communal Areas
The residential complex features a communal swimming pool ideal for relaxing and enjoying the Mediterranean climate. The limited number of units guarantees a quiet and exclusive environment perfect for both permanent living and holiday use.
Lo Pagan and San Pedro del Pinatar Lifestyle
San Pedro del Pinatar enjoys a privileged location between the Mar Menor and the Mediterranean Sea making it a popular destination for sailing water sports and beach lovers. The area offers marinas, nautical clubs and safe shallow waters ideal for families. Lo Pagan is famous for its natural mud baths and long promenade, lined with restaurants, cafes and shops. The town provides excellent facilities including sports centers, an indoor swimming pool and year round social activities supported by a mild winter climate.
Excellent Connectivity and Nearby Amenities
The Dos Mares Shopping Center is just 2 km away offering a wide range of shops, restaurants and leisure options. The marina and port of San Pedro del Pinatar are approximately 1.5 km from the development. Golf lovers will find several courses within a short drive including Lo Romero Golf at around 10 km.
Key Distances to Points of Interest
Beach of Lo Pagan: 0.1 km
San Pedro del Pinatar marina: 1.5 km
Dos Mares Shopping Center: 2 km
Lo Romero Golf: 10 km
Murcia Corvera Airport: 35 km
Alicante Airport: 80 km
Secure Your Beachside Home Today
Contact us now to receive more information or to arrange a viewing of these exclusive new build apartments just steps from the beach in Lo Pagan, San Pedro del Pinatar.



















